391 Avenue

Bayonne City, NJ 07002


 

Price: $920,000

GSMLS:  4004104
Type: Multi-Family
Style: Duplex-Side by Side, See Remarks
Total Units: 3
Beds: 6
Baths: 3 Full
Garage: 5-Car
Year Built: 1947
Acres: 0.06
Property Tax: $12,811
Description
Open House Tomorrow 12PM–2PM.
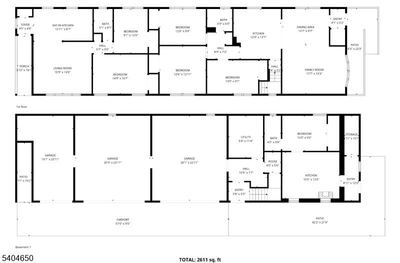
Excellent Condition Legal Two-Family with Bonus Studio & 5-Car Garage !! Prime Location Near Hospital Exceptional opportunity to own a beautifully maintained 2 fam home with an additional separate studio unit, offering outstanding income and flexible living options. Truly nothing to do just move right in. The main owner-occupied unit features 3 spacious bedrooms, a full bathroom, eat-in kitchen, formal dining room, and a large, sun-filled living room. Connected to this unit is a private studio apartment with its own bedroom, bathroom, kitchen, and living area, perfect for additional living space. The rear apartment offers a comfortable 2-bedroom, 1-bath layout with a large living room and eat-in kitchen and is currently rented for $2,100 per month, providing immediate cash flow. A rare 5-car garage adds tremendous value three garages are currently rented for $450 per month, with additional parking available. Major systems have already been updated for peace of mind: furnaces and hot water heaters are only a few years old, and the roof is approximately 15 years old. The property is in excellent condition throughout. Located conveniently near the hospital, this is an ideal opportunity for owner-occupants or investors alike. Run the numbers you'll quickly see the strong income and long-term potential. Schedule your private showing today this one won't last.
General Info
Style:
Duplex-Side by Side, See Remarks
SqFt Building:
n/a
Total Rooms:
12
Basement:
No
Interior:
Carbon Monoxide Detector, Smoke Detector, Tile Floors, Wood Floors
Roof:
Asphalt Shingle
Exterior:
Aluminum Siding, Brick
Lot Size:
25X100COR
Lot Desc:
Corner
Parking
Garage Capacity:
5-Car
Description:
Built-In Garage, Garage Door Opener
Parking:
None, Off-Street Parking, See Remarks
Spaces Available:
n/a
Unit 1
Bedrooms:
3
Bathrooms:
1
Total Rooms:
6
Room Description:
Bedrooms, Dining Room, Eat-In Kitchen, Living Room
Levels:
1
Square Foot:
n/a
Fireplaces:
n/a
Appliances:
Ceiling Fan(s), Dishwasher, Dryer, Microwave Oven, Range/Oven - Gas, Refrigerator, Smoke Detector, Washer
Utilities:
Owner Pays Electric, Owner Pays Gas, Owner Pays Water
Handicap:
No
Unit 2
Bedrooms:
2
Bathrooms:
1
Total Rooms:
4
Room Description:
Bedrooms, Eat-In Kitchen, Living Room
Levels:
1
Square Foot:
n/a
Fireplaces:
n/a
Appliances:
Carbon Monoxide Detector, Ceiling Fan(s), Dishwasher, Microwave Oven, Range/Oven - Gas, Refrigerator, Smoke Detector
Utilities:
Tenant Pays Electric, Tenant Pays Gas, Tenant Pays Heat
Handicap:
No
Unit 3
Bedrooms:
1
Bathrooms:
1
Total Rooms:
3
Room Description:
Bedrooms, Kitchen, Living Room
Levels:
n/a
Square Foot:
n/a
Fireplaces:
n/a
Appliances:
Carbon Monoxide Detector, Range/Oven - Gas, Refrigerator, Smoke Detector
Utilities:
Owner Pays Electric, Owner Pays Gas, Owner Pays Heat, Owner Pays Water
Handicap:
No
Unit 4
Bedrooms:
n/a
Bathrooms:
n/a
Total Rooms:
n/a
Room Description:
n/a
Levels:
n/a
Square Foot:
n/a
Fireplaces:
n/a
Appliances:
n/a
Utilities:
n/a
Handicap:
n/a
Utilities
Heating:
2 Units, Baseboard - Hotwater
Heating Fuel:
Gas-Natural
Cooling:
Wall A/C Unit(s)
Water Heater:
Gas
Water:
Public Water
Sewer:
Public Sewer
Utilities:
All Underground, Gas-Natural
Services:
Fiber Optic Available
School Information
Elementary:
n/a
Middle:
n/a
High School:
BAYONNE
Community Information
County:
Hudson
Town:
Bayonne City
Neighborhood:
res
Financial Considerations
List Price:
$920,000
Tax Amount:
$12,811
Land Assessment:
$175,000
Build. Assessment:
$283,200
Total Assessment:
$458,200
Tax Rate:
2.80
Tax Year:
2024
Listing Information
MLS ID:
4004104
List Date:
01-08-2026
Days On Market:
2
Listing Broker:
UNITED REAL ESTATE
Listing Agent:
Kasia Nowakowska
 

Request More Information

Shawn and Diane Fox
RE/MAX American Dream
3108 Route 10 West
Denville, NJ 07834
Call: (973) 277-7853
Web: MorrisCountyLiving.com


RE/MAX

Town & Valley II

211 Route 10 East
Succasunna, NJ 07876
Office: (973) 598-1008
Fax: (973) 598-1908


Shawn and Diane Fox