12 Troy Dr

Livingston Twp, NJ 07039


 

Price: $1,375,000

GSMLS:  4015019
Type: Single Family
Style: Colonial
Beds: 4
Baths: 3 Full & 1 Half
Garage: 2-Car
Year Built: 1968
Acres: 0.31
Property Tax: $19,756
Description
Open House Sunday 2PM–4PM.
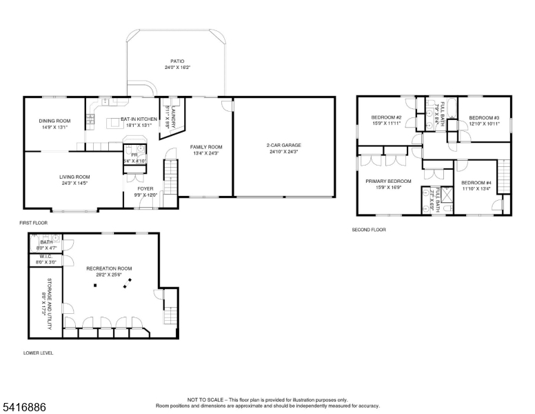
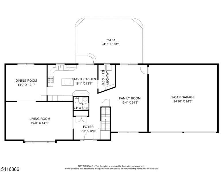
THE HOME you've been waiting for! Perfectly LEVEL .31 acre property on a Perfectly QUIET Street in Perfectly Desirable CHERRY HILL in MOST PRESTIGIOUS Livingston. Well Maintained and Spacious 4 bed & 3.1 bath COLONIAL with over 3150 sq ft of Finished Living Space on 3 Levels incl. a Finished Basement. Welcoming Foyer Opens to NATURALLY BRIGHT Formal Living Room flowing into Wide Formal Dining Room. Eat-In Kitchen w/CENTER ISLAND, SS appliances & Slider spills out to 390 sq ft PAVER PATIO, Perfect for Entertaining! Cozy Front-to-Back Family Room w/2nd Slider out to Patio and FENCED-IN backyard. Laundry and Garage entrance conveniently located on Main level. Upstairs MASTER EN-SUITE with FULL Double Vanity BATH + 3 Additional Bedrooms and Full Bath lit up by Huge Skylight. 720+ sq ft Finished Basement w/REC Room, Full Bath and storage. This warm house feels like HOME completed with a Solid Seller's Disclosure. MOVE RIGHT IN and ENJOY LIFE in LIVINGSTON!
Rooms Sizes
Kitchen:
18x13 First
Dining Room:
14x13 First
Living Room:
24x14 First
Family Room:
13x24 First
Den:
n/a
Bedroom 1:
15x16 Second
Bedroom 2:
15x11 Second
Bedroom 3:
12x10 Second
Bedroom 4:
11x13 Second
Room Levels
Basement:
Bath(s) Other, Rec Room, Storage Room, Utility Room
Ground:
n/a
Level 1:
DiningRm,FamilyRm,Foyer,GarEnter,Kitchen,Laundry,LivingRm,PowderRm
Level 2:
4 Or More Bedrooms, Bath Main, Bath(s) Other
Level 3:
n/a
Level Other:
n/a
Room Features
Kitchen:
Center Island, Eat-In Kitchen
Dining Room:
Formal Dining Room
Master Bedroom:
Full Bath
Bath:
Stall Shower
Interior Features
Square Foot:
n/a
Year Renovated:
n/a
Basement:
Yes - Finished
Full Baths:
3
Half Baths:
1
Appliances:
Carbon Monoxide Detector, Cooktop - Gas, Dishwasher, Dryer, Microwave Oven, Refrigerator, Sump Pump, Wall Oven(s) - Gas, Washer
Flooring:
Carpeting, Tile, Wood
Fireplaces:
No
Fireplace:
n/a
Interior:
Blinds, Carbon Monoxide Detector, Fire Extinguisher, Smoke Detector
Exterior Features
Garage Space:
2-Car
Garage:
Attached Garage
Driveway:
Blacktop
Roof:
Asphalt Shingle
Exterior:
Brick, Wood
Swimming Pool:
No
Pool:
n/a
Utilities
Heating System:
Forced Hot Air
Heating Source:
Electric, Gas-Natural
Cooling:
Central Air
Water Heater:
Gas
Water:
Public Water
Sewer:
Public Sewer
Services:
Garbage Included
Lot Features
Acres:
0.31
Lot Dimensions:
97X140
Lot Features:
Level Lot
School Information
Elementary:
n/a
Middle:
HERITAGE
High School:
LIVINGSTON
Community Information
County:
Essex
Town:
Livingston Twp.
Neighborhood:
Cherry Hill
Application Fee:
n/a
Association Fee:
n/a
Fee Includes:
n/a
Amenities:
Storage
Pets:
Yes
Financial Considerations
List Price:
$1,375,000
Tax Amount:
$19,756
Land Assessment:
$408,700
Build. Assessment:
$371,900
Total Assessment:
$780,600
Tax Rate:
2.53
Tax Year:
2025
Ownership Type:
Fee Simple
Listing Information
MLS ID:
4015019
List Date:
03-17-2026
Days On Market:
0
Listing Broker:
COLDWELL BANKER REALTY
Listing Agent:
Ellen Gonik
 

Request More Information

Shawn and Diane Fox
RE/MAX American Dream
3108 Route 10 West
Denville, NJ 07834
Call: (973) 277-7853
Web: MorrisCountyLiving.com


RE/MAX

Town & Valley II

211 Route 10 East
Succasunna, NJ 07876
Office: (973) 598-1008


Shawn and Diane Fox