1403 Moonlight Ct

Washington Twp, NJ 07840


 

Price: $499,000

GSMLS:  4015021
Type: Condo/Townhouse/Co-op
Style: Townhouse-Interior
Beds: 3
Baths: 2 Full & 1 Half
Garage: 1-Car
Year Built: 1991
Acres: 0.20
Property Tax: $7,642
Description
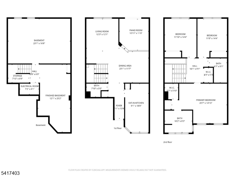
Beautifully maintained 3-bedroom, 2.5-bath home filled with standout features and inviting living spaces. The main level offers a powder room, an eat-in kitchen, a formal dining area, a bright living room, and a unique sunken flex-space perfect for a study or library, all leading to a private patio. The expansive primary suite includes a large full bath and an oversized walk-in closet, while two additional bedrooms and a full bath complete the second floor. A partially finished basement creates an ideal home-cinema setup, already configured for projector movie nights, with a generous unfinished section for storage. 1 car garage with inside entrance complemented by a second dedicated parking space in the driveway. Resort-style community amenities include a sparkling swimming pool and tennis and basketball courts, offering a vacation-like lifestyle right at home.All of this is set in an exceptionally convenient location just moments from everyday essentials. Target, Walmart, ShopRite, Walgreens, and a full shopping and dining hub are close by, making this one of the most accessible and practical spots in the area. Homes in this community rarely become available this is your opportunity.
Rooms Sizes
Kitchen:
16x9 First
Dining Room:
12x11 First
Living Room:
17x12 First
Family Room:
12x11 First
Den:
24x13 Basement
Bedroom 1:
17x14 Second
Bedroom 2:
12x11 Second
Bedroom 3:
12x11 Second
Bedroom 4:
n/a
Room Levels
Basement:
Den, Laundry Room, Utility Room
Ground:
n/a
Level 1:
DiningRm,FamilyRm,Foyer,GarEnter,Kitchen,LivingRm,PowderRm
Level 2:
3 Bedrooms, Bath Main, Bath(s) Other
Level 3:
n/a
Level Other:
n/a
Room Features
Kitchen:
Eat-In Kitchen
Dining Room:
Formal Dining Room
Master Bedroom:
Full Bath, Walk-In Closet
Bath:
Tub Shower
Interior Features
Square Foot:
n/a
Year Renovated:
n/a
Basement:
Yes - Finished-Partially
Full Baths:
2
Half Baths:
1
Appliances:
Dishwasher, Dryer, Kitchen Exhaust Fan, Range/Oven-Gas, Refrigerator, Washer
Flooring:
Carpeting, Tile
Fireplaces:
No
Fireplace:
n/a
Interior:
Blinds, Smoke Detector, Walk-In Closet
Exterior Features
Garage Space:
1-Car
Garage:
Built-In,InEntrnc
Driveway:
1 Car Width, Additional Parking, Blacktop
Roof:
Asphalt Shingle
Exterior:
Brick, Vinyl Siding
Swimming Pool:
Yes
Pool:
Association Pool
Utilities
Heating System:
1 Unit, Forced Hot Air
Heating Source:
Gas-Natural
Cooling:
1 Unit, Central Air
Water Heater:
Gas
Water:
Public Water
Sewer:
Public Sewer
Services:
Cable TV Available, Garbage Included
Lot Features
Acres:
0.20
Lot Dimensions:
n/a
Lot Features:
n/a
School Information
Elementary:
n/a
Middle:
n/a
High School:
n/a
Community Information
County:
Morris
Town:
Washington Twp.
Neighborhood:
Peachtree Village
Application Fee:
n/a
Association Fee:
$452 - Monthly
Fee Includes:
Maintenance-Common Area, Maintenance-Exterior, Snow Removal, Trash Collection
Amenities:
MulSport,PoolOtdr,Tennis
Pets:
Yes
Financial Considerations
List Price:
$499,000
Tax Amount:
$7,642
Land Assessment:
$75,000
Build. Assessment:
$179,500
Total Assessment:
$254,500
Tax Rate:
3.00
Tax Year:
2025
Ownership Type:
Condominium
Listing Information
MLS ID:
4015021
List Date:
03-17-2026
Days On Market:
43
Listing Broker:
KELLER WILLIAMS GREATER BRUNSWICK
Listing Agent:
Scott J. Gordon
 

Request More Information

Shawn and Diane Fox
RE/MAX American Dream
3108 Route 10 West
Denville, NJ 07834
Call: (973) 277-7853
Web: MorrisCountyLiving.com


RE/MAX

Town & Valley II

211 Route 10 East
Succasunna, NJ 07876
Office: (973) 598-1008


Shawn and Diane Fox